Control of the Dynamic Parameters of a Flat Beam Structure by Selection of Fixing
- Авторлар: Kudryavtsev I.V.1, Ivanov V.A.2, Sukhodoeva N.V.1, Rabetskaya O.I.3, Mityaev A.E.1
-
Мекемелер:
- Siberian Federal University
- LLC Borus
- Reshetnev Siberian State University of Science and Technology
- Шығарылым: № 3 (2023)
- Беттер: 106-122
- Бөлім: Articles
- URL: https://journal-vniispk.ru/1026-3519/article/view/137523
- DOI: https://doi.org/10.31857/S0572329922600529
- EDN: https://elibrary.ru/JLKONE
- ID: 137523
Дәйексөз келтіру
Толық мәтін
Аннотация
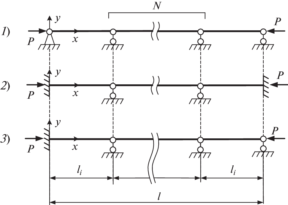
This article proposes a method for the justified choice of the fixing method, the type of supports and their stiffness for flat beam structures of an axisymmetric cross section in order to ensure the specified values of the first frequency of natural bending vibrations and the first critical load, by taking into account the action of longitudinal forces and temperature changes. The technique is based on the well-known provisions of the theory of beam oscillations, the Euler’s theory of stability, and uses the coefficients of supports as a criterion for choosing a fixing method, which are pre-normalized to achieve comparable values. The selected fixing provides the specified value of the first natural oscillation frequency, the value of the first critical temperature, or simultaneously both conditions of working efficiency. According to the developed method, comparative calculations of a flat bar structure using the finite element method have been performed. They has shown good convergence of the results for all controlled parameters. The proposed approach can be used in the design of support fixing of flat beam structures for various purposes to ensure their dynamic behavior.
Негізгі сөздер
Авторлар туралы
I. Kudryavtsev
Siberian Federal University
Email: ikudryavcev@sfu-kras.ru
Krasnoyarsk, 660041 Russia
V. Ivanov
LLC Borus
Email: ikudryavcev@sfu-kras.ru
Krasnoyarsk, 660041 Russia
N. Sukhodoeva
Siberian Federal University
Email: ikudryavcev@sfu-kras.ru
Krasnoyarsk, 660041 Russia
O. Rabetskaya
Reshetnev Siberian State University of Science and Technology
Email: ikudryavcev@sfu-kras.ru
Krasnoyarsk, 660037 Russia
A. Mityaev
Siberian Federal University
Хат алмасуға жауапты Автор.
Email: ikudryavcev@sfu-kras.ru
Krasnoyarsk, 660041 Russia
Әдебиет тізімі
- Крейн М.Г. Вибрационная теория многоопорных балок // Вестник инженеров и техников. 1933. № 4. С. 142–145.
- Miles L.W. Vibration of beams on many supports // ASCE J. Eng. Mech. 1956. V. 82. P. 1–9.
- Zhu L., Elisacoff I., Lin Y.K. Free and forced vibrations of periodic multispan beams // Shock Vibr. 1994. V. 1. № 3. P. 217–232.
- Бидерман В.Л. Теория механических колебаний. М.: Высшая школа, 1980. 408 с.
- Доев В.С. Поперечные колебания балок. М.: КНОРУС, 2016. 412 с.
- Banakh L.Y. Vibrations of Mechanical Systems with Regular Structure. Berlin: Springer, 2010. 262 p.
- Benaroya H., Nagurka M., Han S. Mechanical Vibration. Boca Raton, Florida: Taylor and Francis, 2017. 602 p.
- Bottega W.J. Engineering Vibrations. N. Y.: CRC Press, 2006. 750 p.
- Clough R.E. Dynamics of Structures. 3th ed. McGraw-Hill Education, 1995. 752 p.
- Geradin M., Rixen D.J. Mechanical Vibrations: Theory and Application to Structural Dynamics. 3rd Ed. L.: Wiley and Sons, 2015. 617 p.
- Hagedorn P., Dasgupta A. Vibrations and Waves in Continuous Mechanical Systems. John Wiley & Sons, 2007. 388 p.
- Hartog J.P. Mechanical Vibrations. N.Y.: Dover Publications, 1985. 449 p.
- Inman D.J. Engineering Vibration. Prentice Hall, 2014. 720 p.
- Kelly S.G. Advanced Vibration Analysis. Boca Raton: CRC Press, 2006. 650 p.
- Gupta S.G. Natural flexural waves and the normal modes of periodically-supported beams and plates // JSV. 1970. V. 13. № 1. P. 89–101. https://doi.org/10.1016/S0022-460X(70)80082-7
- Zhao Z., Wen S., Li F., Zhang C. Free vibration analysis of multi-span Timoshenko beams using the assumed mode method // Arch. Appl. Mech. 2018. V. 88. № 7. P. 1213–1228. https://doi.org/10.1007/s00419-018-1368-8
- Zhu L., Elishakoff, I., Lin Y.K. Free and forced vibrations of periodic multispan beams // Shock Vib. 1994. V. 1. № 3. P. 217–232. https://doi.org/10.3233/SAV-1994-1302
- Thomsen J.J. Vibrations and Stability: Advanced Theory, Analysis, and Tools. 2nd Ed. N.Y.: Springer, 2003. 404 p.
- Timoshenko S.P., Gere J.M. Theory of Elastic Stability. N. Y.: Courier Corporation, 2009. 541 p.
- Алфутов Н.А., Колесников К.С. Устойчивость движения и равновесия. Москва: МГТУ им. Н.Э. Баумана, 2003. 256 с.
- Thomsen J.J. Vibrations and Stability. Advanced Theory, Analysis, and Tools. Berlin, Heidelberg: Springer Berlin, Heidelberg, 2003. 420 p. https://doi.org/10.1007/978-3-662-10793-5
- Trahair N.S. Buckling analysis design of steel frames // J. Constr. Steel Res. 2009. V. 65. № 7. P. 1459–1463. https://doi.org/10.1016/j.jcsr.2009.03.012
- Биргер И.А., Пановко Я.Г. Прочность, устойчивость, колебания. Т. 3. М.: Машиностроение, 1988. 567 с.
- Уманский А.А. Справочник проектировщика. Т. 2. М.: Стройиздат, 1973. 415 с.
- Коренев Б.Г. Справочник по динамике сооружений. М.: Стройиздат, 1972. 511 с.
- Blevins R.D. Formulas for Dynamics, Acoustics and Vibration. L.: John Wiley & Sons, 2016. 464 p.
- Wang C.M., Wang C.Y. Exact Solutions for Buckling of Structural Members. Boca Raton: CRC Press, 2005. 224 p.
- Mityaev A.E., Kudryavtsev I.V., Khomutov M.P., Brungardt M.V., Kolotov A.V. Estimation of the minimum beam length for the static, dynamic, and stability problems // IOP Conf. Ser.: Mater. Sci. Eng. 2021. V. 1155. P. 012101. https://doi.org/10.1088/1757-899X/1155/1/012101
- Galef A.E. Bending frequencies of compressed beams // J. Acoust. Soc. Am. 1968. V. 44. № 2. P. 643. https://doi.org/10.1121/1.1911144
- Bokaian A. Natural frequencies of beams under compressive axial loads // JSV. 1988. V. 126. № 1. P. 49–65. https://doi.org/10.1016/0022-460X(88)90397-5
- Bokaian A. Natural frequencies of beams under tensile axial loads // JSV. 1990. V. 142. № 3. P. 481–498. https://doi.org/10.1016/0022-460X(90)90663-K
- Stephen N.G. Beam vibration under compressive axial load-upper and lower bound approximation // JSV. 1989. V. 131. № 2. P. 345–350. https://doi.org/10.1016/0022-460X(89)90498-7
- Грудев И.Д. Колебания криволинейных стержней. М.: МИК, 2007. 254 с.
- Auciello N.M., De Rosa M.A. Free vibrations of circular arches: a review // JSV. V. 176. № 4. 1994. P. 433–458. https://doi.org/10.1006/jsvi.1994.1388
- Chidamparam P., Leissa A. W. Vibrations of planar curved beams, rings, and arches // ASME. Appl. Mech. Rev. 1993. V. 46. № 9. P. 467–483. https://doi.org/10.1115/1.3120374
- Markuš Š., Tibor N. Vibration of Curved Beams // Shock Vibr. Dig. 1981. V. 13. P. 3–14.
- West H.H., Mafi M. Eigenvalues for beam-columns on elastic supports // J Struct Eng (US). 1984. V. 2110. № 6. P. 1305–1320. https://doi.org/10.1061/(ASCE)0733-9445(1984)110:6(1305)
- Lin Y.K. Free Vibration of a continuous beam on elastic supports // IJMS. 1962. V. 4. P. 409–423. https://doi.org/10.1016/S0020-7403(62)80027-7
- Naguleswaran S. Transverse vibration of an Euler-Bernoulli uniform beam on up to five resilient supports including ends // JSV. 2003. V. 261. № 2. P. 372–384. https://doi.org/10.1016/S0022-460X(02)01238-5
- Lin H., Chang S.C. Free vibration analysis of multi-span beams with intermediate flexible constraints // JSV. 2005. V. 281. № 1–2. P. 155–169. https://doi.org/10.1016/j.jsv.2004.01.010
- Maurizi M.J., Bambill D.V., Bellés P.M., De Rosa M.A., Grossi R.O., Marcelo A.C., Zannier L. Free vibrations of Bernoulli-Euler beams with intermediate elastic support: a concise thematic recension // JSV. 2005. V. 281. № 3–5. P. 1238–1239. https://doi.org/10.1016/j.jsv.2004.06.014
- Luo J., Zhu S., Zhai W. Exact closed-form solution for free vibration of Euler-Bernoulli and Timoshenko beams with intermediate elastic supports // IJMS. 2022. V. 213. P. 106842. https://doi.org/10.1016/j.ijmecsci.2021.106842
- Chonan S., Sasaki M. Vibration and stability of elastically supported multi-span beams under conservative and non-conservative loads // JSV. 1985. V. 99. № 4. P. 545–556. https://doi.org/10.1016/0022-460X(85)90539-5
- Кудрявцев И.В., Рабецкая О.И., Митяев А.Е. Аппроксимация значений коэффициентов опор балки при колебаниях и потери устойчивости // Сибирский аэрокосмический журнал. 2022. № 3. С. 461–474. https://doi.org/10.31772/2712-8970-2022-23-3-461-474
- Дрейпер Н., Смит Г. Прикладной регрессионный анализ. М.: Вильямс, 2016. 912 с.
- Несмеев Ю.А. Об одном подходе к решению алгебраических уравнений 3-й и 4-й степеней // Вестник ТГУ. Математика и механика. 2011. № 1 (13). С. 26–30.
- Несмеев Ю.А. Развитие одного подхода к решению алгебраического уравнения 4-й степени // Вестник ТГУ. Математика и механика. 2013. № 4 (24). С. 29–38.
- Кудрявцев И.В. Обеспечение динамического состояния прямолинейных волноводных трактов при нагреве с помощью расстановки опор // Вестник МАИ. 2021. № 4 (28). С. 76–89. https://doi.org/10.34759/vst-2021-4-92-105
Қосымша файлдар









