Architectural and typological specificity of the buildings of FZU schools. Part 2. Urban and functional planning features (1930s)
- Authors: Saprykina N.S.1
-
Affiliations:
- International Academy of Business and New Technologies
- Issue: Vol 15, No 4 (2025)
- Pages: 163-172
- Section: URBAN PLANNING. RURAL SETTLEMENT PLANNING
- URL: https://journal-vniispk.ru/2542-0151/article/view/353027
- DOI: https://doi.org/10.17673/Vestnik.2025.04.22
- ID: 353027
Cite item
Full Text
Abstract
The series of articles reveals the peculiarities of the architecture of a unique type of educational institution of the Soviet period - the Factory Apprenticeship School (FZU), which laid the foundation for the formation of the educational system in the USSR. The second article deals with possible variants of placing the buildings of FZU schools on the territory of cities from the position of governmental installations on their integration into the general system with the profile factory-industrial enterprise. The article considers the constant and variable components of the functional-planning structure of different school buildings, reveals the peculiarities of spatial grouping of functional blocks, as well as the main factors influencing the key differences between the projects.
Keywords
Full Text
«Помимо основных и вспомогательных производственных зданий и сооружений каждое промышленное предприятие должно быть обслужено зданиями и сооружениями административно-технического, хозяйственного, профессионально-педагогического, санитарно-гигиенического, культурно-просветительного и другого характера, каждое из которых должно находиться в том или другом отношении к производственным зданиям и, следовательно, к общей диаграмме предприятия» – так говорилось о специфике структуры промышленного предприятия при описании примеров «рационального распланирования генерального плана» [2, с. 74].
Составление генерального плана предприятия на выбранном участке земли при заданных географических и топографических условиях в целом представляло собой непростую задачу, которая требовала от исполнителей «больших знаний, вдумчивости, свободной ориентации и, в значительной мере, фантазии и находчивости», так как генеральный план преследовал решение не только градостроительных, функционально-технологических, транспортно-пешеходных задач, но и визуально-презентационные цели. Например, размещение здания заводоуправления определялось направлением главной дороги (улицы) к предприятию, которое не должны были закрывать другие здания или деревья. «Оно должно было доминировать на площади, своим внешним видом и положением соответствуя роли административного, технического, хозяйственного и финансового центра предприятия. Внешний вид здания заводоуправления должен был быть «в спокойных, внушительных, но не тяжелых массах, чтобы уже и́здали его черты производили хорошее, эстетическое впечатление» [2, с. 77].
Согласно правилам проектирования рубежа конца 1920 – начала 1930-х гг., школа для фабрично-заводского ученичества (ФЗУ) входила в группу зданий, «обслуживающих» производство (заводоуправление, проходная контора, медпункт, заводские лаборатории и пр.). Все они по специфике внутренней организации, построению объемно-планировочной структуры и конструктивному решению больше походили на типы гражданских зданий. Располагалась данная группа вместе со зданием заводоуправления у главного входа на завод на предзаводской площади, представляющей собой своеобразный планировочный центр между жилой и производственной территориями. В зависимости от ее формы, размеров, ситуации предусматривались следующие варианты размещения объектов на ней:
- Здание заводоуправления и проходная контора представляли собой официальный и композиционный центр «фасада» промышленного предприятия со стороны обширной площади, а здание для фабрично-заводского ученичества наравне со зданиями лаборатории, медпункта, проектной конторы и другими объектами фланкировали его на некотором расстоянии (рис. 1, 2).
- Группа «обслуживающих» зданий располагалась по периметру (трем сторонам) небольшой входной площади, центром композиции становилась проходная, здание заводоуправления противолежало комплексу из школы ФЗУ, лаборатории и пр. Первоначально именно такое классическое решение было предложено выполнить в проекте генерального плана Уральского машиностроительного завода, но в реализованном варианте школа ФЗУ была сдвинута на восток (за здание лаборатории), где территория напротив транспортного кольца позволяла разместить более крупномасштабный объект, поэтому решение площади из второго типа превратилось в первый тип (рис. 3, 4).
- Комплекс зданий на площади не включал в себя школу ФЗУ, она смещалась в буферную (санитарную) зону между промышленной и жилой территориями, таким образом делая ее равноудаленной и равнодоступной от них.
Рис. 1. Генеральный план (проект) Тракторного завода в Сталинграде: 1 ‒ здание заводоуправления; 2 – медпункт; 3 ‒ проходная контора; 5 – Фабзавуч; 7 – лаборатория [2]
Fig. 1. General plan (project) of the Tractor Plant in Stalingrad: 1 ‒ building of the plant management; 2 ‒ medical centre; 3 ‒ pass office; 5 ‒ Fabzavuch; 7 ‒ laboratory [2]
Рис. 2. Группа зданий при заводоуправлении Магнитогорского металлургического завода (проект): А – здание заводоуправления; Б – проходная контора; В – школа Фабзавуча [2]
Fig. 2. Group of buildings at the plant management of Magnitogorsk Metallurgical Plant (project): A ‒ plant management building; B ‒ pass office; C ‒ school Fabzavuch [2]
Рис. 3. Фрагмент генерального плана (проект) Уральского машиностроительного завода: I – здание заводоуправления; II – проходная контора; III – лаборатория; IV – школа Фабзавуча [2]
Fig. 3. Fragment of the general plan (project) of the Ural Machine-Building Plant: I ‒ plant management building; II ‒ pass office; III ‒ laboratory; IV ‒ school Fabzavuch [2]
Рис. 4. Реализованный комплекс зданий площади Первой пятилетки, 1928‒1934 гг., совмещенный с современной картой города (Яндекс). Архитекторы П.В. Оранский, В.В. Безруков, ИМ.В. Рейшер, С.А. Васильев: I – проходная контора; 2 – гостиница; 3 – заводоуправление; 4-5 – жилой дом; 6 – памятник; 7 – лаборатория; 8 – школа Фабзавуча [4]
Fig. 4. Realised building complex of the First Five-Year Plan Square, 1928‒1934, combined with a modern city map (Yandex). Architects P.V. Oransky, V.V. Bezrukov, IM.V. Reisher, S.A. Vasiliev: I ‒ pass office; 2 ‒ hotel; 3 ‒ factory management; 4-5 ‒ residential house; 6 ‒ monument; 7 ‒ laboratory; 8 ‒ school Fabzavuch [4]
Такое расположение профессиональной школы отражало значимость данного структурного подразделения для промышленного предприятия и давало возможность учащимся сразу быть интегрированным в производственный процесс, где часть практических занятий могла проходить непосредственно в цехах предприятия. Это позволяло ученикам быстрее адаптироваться на производстве и быть включенным в рабочий процесс еще до окончания школы ФЗУ, что было предопределено Постановлениями ЦИК и СНК СССР тех лет, которые директивно указывали на такую необходимость: «..максимально приблизить производственное обучение к потребностям промышленности предложить… обеспечить немедленный переход учащихся школ фабрично-заводского ученичества, после получения предварительной производственной подготовки, из учебных производственных мастерских в производственные цеха для продолжения производственного обучения» [3]. Поэтому размещение учебных заведений в непосредственной близости от производственной территории цехов предприятия было самым рациональным решением при таком формате обучения.
Данное решение центрального входного планировочного узла вместе со школами фабрично-заводского ученичества возможно было реализовать только при единовременном планировании территории как производственно-вспомогательной зоны, так и обслуживающей, либо при наличии резервной территории для их развития. В ряде случаев, ввиду ограниченности пространства ранее построенных промышленных предприятий, для новых объектов не всегда удавалось что-то построить в непосредственной близости от них. При этом для профессиональной школы подбиралась территория в жилой зоне, как можно ближе расположенная к профильному производству, имеющая хорошие пешеходные и транспортные связи с ним. Иногда удаленное от предприятий размещение школ ФЗУ сопровождалось объединением их в единую структуру с общеобразовательными школами или техникумами, что влекло за собой усложнение планировочной структуры и общей конфигурации образовательного комплекса, требовало подбора достаточно большой территории по площади. В таких комплексах предусматривался, как правило, развитый набор специализированных мастерских, лабораторий и вспомогательных помещений, давая возможность осуществлять практические занятия в большей степени на собственных площадях (рис. 5). Такое решение неизбежно отражалось и на архитектуре здания, соответствовало масштабу окружающей застройки, сближало облик Фабзавуча с прототипом общеобразовательной школы.
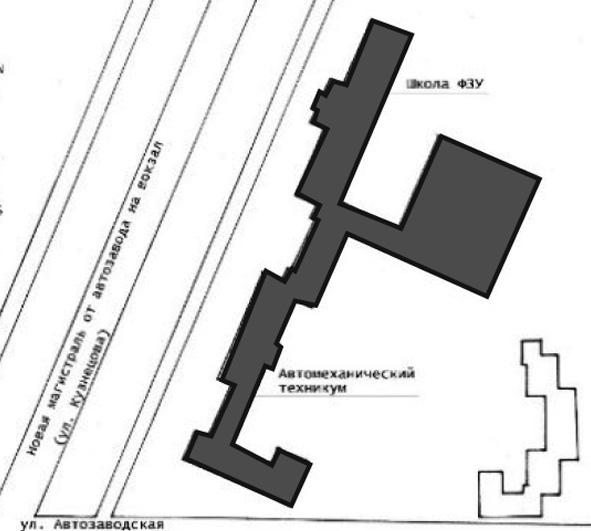
Рис. 5. Проект техникума и школы ФЗУ. Кузнецкстрой. Архитектор Б.В. Данчич (проекты 1930‒1933 гг.) [5]
Fig. 5. The project of the technical school and the FZU school. Kuznetskstroy. Architect B.V. Danchich (projects 1930‒1933) [5]
В зависимости от специализации и характера производства промышленных предприятий, здания Фабзавуча при них имели набор помещений, приспособленный «для удовлетворения нужд производства данного предприятия» [6].
Практически одинаковый набор помещений в структуре всех зданий школ ФЗУ был предусмотрен для общетеоретической подготовки: несколько классов на 40–60 человек, физический и географический кабинеты, химическая лаборатория, гимнастический зал и читальный зал с библиотекой. Количество основных помещений определялось числом учащихся. Как «ноу-хау» своего времени в отдельных школах ФЗУ предусматривалась возможность применения кинематографа для учебных целей, для чего проектировалась кинопроекционная; устраивались и помещения для кружковых занятий – развития талантов учащихся. В административной части проектировались кабинеты заведующего и врача, учительская или преподавательская, комната организаций и/или Красный уголок, могли быть помещения сторожа и заведующего хозяйством. В качестве вспомогательных помещений предусматривались вестибюль, гардероб, столовая или буфет, санузлы.
Разница в структуре планов профессионально-технических школ состояла в перечне, количестве и площади специализированных кабинетов (или лабораторий) и производственных помещений (мастерских), где ученики получали специальные теоретические и практические навыки будущей профессии в соответствии с отраслевой направленностью предприятия. Например, для Фабзавуча при Металлургическом заводе предусматривались слесарно-механическая, электротехническая, металлографическая мастерские; кузница с закалочной; столярная, а также крупный склад готовых изделий. В школе Фабзавуча машиностроительного профиля, помимо слесарно-механической мастерской и кузницы, проектировались кабинеты для преподавания специальных предметов (тракторостроение и машиноведение; основы механики; технология металлов, холодная и горячая обработка).
Все помещения школы ФЗУ группировались в отдельные корпуса разной этажности и с разной планировочной структурой в зависимости от их предназначения:
- помещения общеобразовательного и административного блоков размещались в многоэтажном корпусе;
- мастерские со вспомогательными помещениями объединялись в одноэтажном корпусе и имели несколько самостоятельных входов-выходов, в том числе на хозяйственный двор;
- блок вспомогательных помещений (для хранения спецодежды, раздевалок с душевыми и туалетами) иногда мог быть буфером между мастерскими и учебной частью;
- гимнастический зал, выполняющий одновременно функцию рекреации и/или актового зала (зала собраний), размещался в отдельном одноэтажном блоке.
При этом все элементы соединялись в один комплекс, создавая непрерывное перетекающее пространство, в любую точку которого можно было попасть не выходя за его пределы. Здесь сочетались анфиладный, коридорный (с размещением помещений по одну или две его стороны) и зальный типы планировок.
Согласно публикациям 1930-х гг., в рассматриваемый период преобладало три основных типа пространственно-планировочного решения школ ФЗУ, которые определялись общим количеством учащихся и специализацией предприятия, когда функциональные блоки группировались:
- без образования дополнительных внутренних пространств, представляя собой непрерывный линейный контур, в том числе с изломами. Характерным примером служит школа ФЗУ для Тракторного завода на 182 учащихся (рис. 6);
- с трех сторон вокруг полуоткрытого двора создавали несколько полуоткрытых двориков или курдонеров. Пример – здание ФЗУ для Вагоностроительного завода на 330 учащихся (рис. 7);
- вокруг замкнутого двора, формируя внутреннее пространство хозяйственного назначения достаточно больших размеров. Пример – здание ФЗУ для Металлургического завода на 1875 учащихся (рис. 8).
Рис. 6. Здание ФЗУ для Тракторного завода на 182 учащихся. План 1-го этажа [2]
Fig. 6. The FZU building of the 182-student for the Tractor Plant. Plan of the 1st floor [2]
Рис. 7. Здание ФЗУ для Вагоностроительного завода на 330 учащихся. План 1-го этажа [2]
Fig. 7. The FZU building of a factory for 330 pupils. Plan of the 1st floor [2]
Рис. 8. Здание ФЗУ для Металлургического завода на 1875 учащихся. План 1-го этажа [2]
Fig. 8. The FZU building for the Metallurgical plant for 1875 students. Plan of the 1st floor [2]
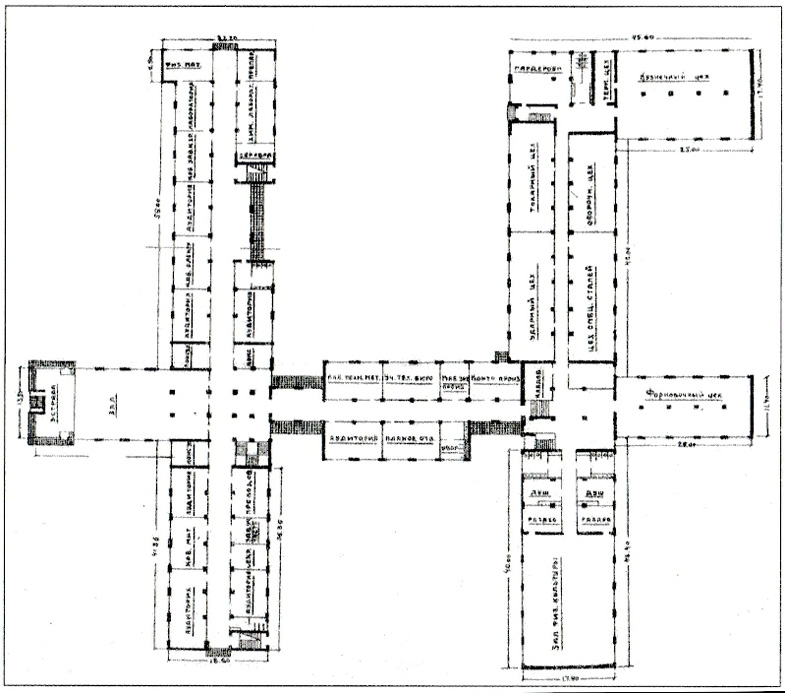
Иногда здания представляли собой комбинированные варианты объединения блоков с чередованием открытых и полуоткрытых двориков, которые определялись значительными параметрами территории, сравнительно большой вместимостью школ, объединением их с другими учебными заведениями, многофункциональностью. Например, здание школы ФЗУ в соцгороде Уралмаша, построенное по проекту П.В. Оранского в 1931 г., было задумано как крупномасштабный разветвленный объект. С одной стороны, проект предусматривал четкое функциональное зонирование: учебный корпус размещался на севере (слева на плане); производственный – на юге (справа на плане), где располагались ударный, товарный и термический цеха со вспомогательными помещениями; по центру их объединял блок административных помещений [4]. С другой стороны, он представлял собой смешение двух типов пространственно-планировочных решений: энергично выступающий центральный ризалит с входной группой и залом на главном фасаде северного корпуса не формировал «лакун» – внутренних пространств; тогда как на юге два блока-выступа цехов формировали неглубокий курдонер между ними; в середине комплекса также было образовано два глубоких полуоткрытых двора, окруженных с трех сторон корпусами разного функционального назначения (рис. 9).
Рис. 9. Здание ФЗУ в соцгороде Уралмаша. Архитектор П.В. Оранский, 1929 г. План 1-го этажа [7]
Fig. 9. The FZU building in the socialist city of Uralmash. Architect P.V. Oransky, 1929. Plan of the 1st floor [7]
Построенное здание школы ФЗУ значительно превосходило по габаритам и количеству помещений первоначальный проект, который прорабатывался одновременно с проектированием генплана предзаводской площади для Уральского машиностроительного завода по проекту архитектора И.П. Антонова (рис. 10). Авторы генплана вынуждены были фрагментарно его переработать, чтобы подобрать соответствующий по величине участок для крупного здания и, не исключая его из группы «обслуживающих» зданий, гармонично вписать в общий контекст площади и улицы Машиностроителей.
Рис. 10. Проект школы ФЗУ при Уральском машиностроительном заводе. Архитектор И.П. Антонов. Год опубликования проекта –1930 [8]
Fig. 10. The project of the FZU school at the Ural Machine-Building Plant. Architect I.P. Antonov. Year of the project publication ‒ 1930 [8]
Варианты пространственной группировки функциональных блоков зданий школ ФЗУ чаще всего складывались в Г-, Т- и П-образные очертания планов (идентично общеобразовательным школам этого времени). Ряд построенных зданий в разных регионах демонстрирует и другие, более сложные конфигурации планов (Ч-, Р-, Н-, Ш-, Ц-, Ж-образного очертания) с открытыми, полузамкнутыми и замкнутыми внутренними пространствами (см. таблицу).
Варианты конфигурации планов зданий школ ФЗУ (конец 1920–1930-х гг.)1
Линейная (Г-, Т-образная конфигурация плана) с небольшими выступами и обтекающими открытыми пространствами | Компактная (П-, Ч-, Р-образная конфигурация плана) с полуоткрытыми или закрытыми двориками разной глубины | Разветвленная (Е-, Н-, Ш-, Ж-, Х-образная и др. конфигурация плана) с многочисленными полуоткрытыми и закрытыми двориками |
Тверь, станция Дорошиха, 1. Школа ФЗУ при вагонзаводе, 1931‒1932 |
Кемеровская область, г. Анжеро-Судженск, ул. Коминтерна, 9. Школа ФЗУ, 1933 |
Пенза, ул. Ленина, 6. Школа ФЗУ, конец 1920 ‒ начало 1930-х |
Нижегородская обл., г. Дзержинск, ул. Студенческая, 32. Здание школы ФЗУ и техникума завода им. Калинина, 1938 |
Ивановская область, г. Родники, пл. Ленина, 10. Школа ФЗУ, 1928‒1929 |
Нижний Тагил, ул. Карла Маркса, 2. Школа ФЗУ, 1932‒1933 |
Нижний Новгород (Горький), пр. Гагарина, 168. Школа ФЗУ, 1930-е | Казань, ул. Габдуллы Тукая, 114 / ул. Салиха Сайдашева, 1. Школа ФЗУ имени Сталина завода «Красный молот», начало 1930-х | Нижний Новгород (Горький), Микрорайон Соцгород-1, ул. Школьная, 9. Комплекс школы №1 и ФЗУ Автозавода, 1932 |
Нижегородская обл., г. Балахна, ул. Правдинская, 1. Школа ФЗУ в Правдинске, 1930-е |
Ярославль, ул. Советская, 77. Школа ФЗУ Ярославского резиноасбестового комбината, 1931‒1932 |
Екатеринбург (Свердловск), ул. Машиностроителей, 13. Школа ФЗУ, 1931 |
С-Петербург (Ленинград), ул. Балтийская, 35. Школа ФЗУ (в районе ул. Шевцова), 1935‒1938 | Первоуральск, ул. Торговая. Школа ФЗУ Новотрубного завода (сегодня один из корпусов заводоуправления ОАО ПНТЗ), 1930-е |
Воронежская обл., г. Лиски, ул. Лысенко, 1А. Школа ФЗУ, 1930-е |
С-Петербург (Ленинград), ул. Пугачева, 5-7. Щкола ФЗУ Ленэнерго, 1931‒1934 |
Тула, ул. Металлистов, 2А. Школа ФЗУ, 1932 |
Ярославль, ул. Автозаводская, 1а. Комплекс Учебного комбината государственного Автозавода №3 (ФЗУ + техникум), 1929‒1932 |
Заключение
Рассмотренные градостроительные, функциональные, пространственно-планировочные особенности формирования школ Фабзавуча (на фоне становления и развития профессиональной системы образования, правительственных установок на типовое проектирование учебных зданий) постепенно стали основными принципами проектирования. Но постоянные реформы в области образования и изменения в системе управления данными объектами привели в итоге к многообразию архитектурных решений, так как проекты зданий школ ФЗУ реализовывались с учетом доминирования мнений и возможностей конкретных производственных предприятий, в чьей ведомственной подчиненности они находились. Все это неизбежно отразилось и на композиционных принципах архитектурного формообразования зданий школ ФЗУ, стилистических предпочтениях (см. часть 3 статьи).
Выводы
Анализ вариантов размещения школ фабрично-заводского ученичества на территории городов, организации и модификации их функциональной и пространственно-планировочной структур позволил сформулировать следующие выводы о типологической специфике уникальных образовательных зданий в СССР в 1930-х гг.:
- Расположение зданий школы ФЗУ в «общей диаграмме предприятия» (причем в группе со зданием заводоуправления) отражало значимость данного структурного подразделения для него и в целом подчеркивало важность появившегося типа здания для страны. Такая структура интеграции давала новые возможности как учащимся, которые могли работать и получать зарплату уже в процессе обучения, так и предприятиям и экономике страны, так как в этом случае программа производственного обучения увязывалась с «промфинпланом цеха» и помогала реализовывать пятилетние планы развития СССР [2].
- Выявленные типы размещения школ ФЗУ определялись, прежде всего, принадлежностью к группе обслуживающих зданий предприятий, зависели от возможностей комплексного планирования территории новых предприятий или наличия территориальных ресурсов существующих фабрик и заводов. В ряде случаев выбор территории был продиктован необходимостью интеграции с другими учебными заведениями города в структуре жилой застройки, иногда – замены старых (религиозных) символов на новые аллюзии эпохи, олицетворяющих собой актуальный политический и экономический строй.
- Все здания школ ФЗУ имели практически одинаковый перечень помещений для общетеоретической подготовки и отличались в основном набором специальных помещений, предназначенных для практических занятий. Различия также состояли в общем количестве помещений, их габаритах и группировке в структуре здания, в том числе обусловленными объединением с другими учебными учреждениями.
Установлено три основных типа пространственно-планировочных решений зданий Фабзавуча в период их массового строительства в начале 1930-х гг., которые в дальнейшем имели разнообразные модификации и комбинации.
К основным факторам, влияющим на ключевые различия проектов и построек рассматриваемых типов зданий, относятся: отраслевая специфика фабрично-заводских предприятий, общее количество учащихся, градостроительные характеристики участка для размещения школы ФЗУ на территории города.
1 Конфигурации отдельных зданий могут отличаться от первоначальных за счет пристроек, так как они соответствуют современному состоянию (взяты с директории свободного доступа – Яндекс Карты)
About the authors
Natalya S. Saprykina
International Academy of Business and New Technologies
Author for correspondence.
Email: saprykinans@edu.mubint.ru
ORCID iD: 0000-0003-4848-1029
SPIN-code: 6007-0890
Doctor of Architecture, Associate Professor, Corresponding Member of the Russian Academy of Architecture and Construction Sciences, Head of the Urban Planning Chair
Russian Federation, 150999, Yaroslavl, Soviet st., 80References
- Saprykina N.S. Architectural and typological specificity of the buildings of fzu school. Part 1. Formation of a unique building type in the context of development of the vocational education system. Gradostroitel’stvo i arhitektura [Urban Construction and Architecture], 2025, vol. 15, no. 2, pp. 159‒166. (in Russian) doi: 10.17673/Vestnik.2025.02.19
- Hoffmann V.L. Fabrichno-zavodskaja arhitektura Chast’ 1. Planirovka i konstruirovanie zdanij i sooruzhenij promyshlennyh predprijatij. Izd. 3-e [Factory Architecture Part 1. Planning and design of buildings and structures of industrial enterprises. Ed. The 3rd]. Leningrad, KUBUCH, 1932. 580 p.
- Decree of the Council of People’s Commissars of the USSR on measures to improve the work of factory apprenticeship schools under the jurisdiction of the highest councils of the national economy of the USSR and the Union republics. 8.6.1931/Laws on schools of FZU and vocational schools. 1931‒1940. Available at: https://музейреформ.рф/node/14001 (accessed 18 November 2024).
- Svod pamjatnikov istorii i kul’tury Sverdlovskoj oblasti. Tom 1. Ekaterinburg / otv. red. V.E. Zvagel’skaja [Code of historical and cultural monuments of the Sverdlovsk region. Volume 1. Yekaterinburg/resp. ed. V.E. Zvagelskaya]. Yekaterinburg, SOCRAT Publishing House, 2007. 536 p.
- Dancic B.V. The project of the technical school and school of FZU Kuznetskstroy. Kuznetskstroy. Ezhegodnik obshhestva arhitektorov hudozhnikov (period otrazhaet 1930‒1933) [Yearbook of the Society of Architects of Artists (period reflects 1930–1933)], Leningrad, Leningrad Union of Architects, 1935, iss. 14, P. 47–57. (in Russian)
- Veselov A.N. Nizshee professional’no-tehnicheskoe obrazovanie v RSFSR: (ocherki po istorii proftehobrazovanija) / pod red. N.A. Konstantinova [Lower vocational education in the RSFSR: (essays on the history of vocational education )/ed. N.A. Konstantinova]. Moscow, Trudreservizdat, 1955. 328 p.
- Smirnov L.N. Peterburgskij sled v arhitekture konstruktivizma Ekaterinburga [Petersburg trace in the architecture of constructivism of Yekaterinburg]. Yekaterinburg, Publishing house of UrGAHU, St. Petersburg, PervoGrad Publishing House, 2021. 148 p.
- Antonov I.P. Project of the school of FZU at the Ural Machine Building. plant. Ezhegodnik obshhestva arhitektorov hudozhnikov [Society of Artists Architects Yearbook]. Leningrad, Publication of the Society of Architects and Artists, 1930, no. 13, P. 1–10. (in Russian)
Supplementary files





























