Prefabricated monolithic frame, effective for use in cold construction conditions
- Authors: Koyankin A.A.1
-
Affiliations:
- Siberian Federal University
- Issue: Vol 15, No 4 (2025)
- Pages: 21-26
- Section: BUILDING CONSTRUCTIONS, BUILDINGS AND FACILITIES
- URL: https://journal-vniispk.ru/2542-0151/article/view/353005
- DOI: https://doi.org/10.17673/Vestnik.2025.04.03
- ID: 353005
Cite item
Full Text
Abstract
A structural system of a prefabricated monolithic frame is presented, effectively using the constructive and technological capabilities of this type of housing construction, which is based on the construction of the building in stages. At the 1st stage, the elements of the prefabricated part of the frame are installed. At the 2nd stage, with the onset of positive ambient temperatures, monolithic concrete is laid on the entire frame simultaneously or in grippers. As part of the 1st stage, the assembled prefabricated part of the frame independently perceives the loads characteristic of the construction stage - the own weight of the prefabricated parts, the weight of the additionally supported prefabricated elements, as well as the weight of the homologation concrete. The spatial rigidity of the frame is ensured by the rigid coupling of the columns with the foundation. The prefabricated parts of the crossbars with the columns are connected pivotally. If necessary, temporary mounting links are installed. At the 2nd stage, after monolithic concrete sets the required strength, the frame becomes prefabricated, has higher strength and rigidity, and is able to withstand the remaining loads of the construction stage (the weight of floor structures, partitions, curtain walls and partitions, etc.) and the loads of the operation stage. The hinge joint of the bolt with the column becomes rigid, and temporary connections, if installed, are dismantled. Experimental studies have been conducted and presented, the feature of which was the phased installation and loading of prefabricated and monolithic parts of a flat frame. These studies have confirmed the constructive and technological effectiveness of the proposed structural system of a prefabricated monolithic frame.
Full Text
Введение
На территории РФ достаточно суровые условия строительства, что обусловлено климатом, который хоть и разнообразен, но преимущественно холодный (период со среднесуточной температурой наружного воздуха ниже 5 °C и минимальной суточной температуре ниже 0 °C длится полгода и более). Данное обстоятельство приводит к необходимости принятия специальных мер для обеспечения набора бетоном требуемой прочности [1‒4]. При этом применение сборных конструкций не всегда рационально, так как возникает необходимость устройства сложных и высокоточных работ по устройству стыковых соединений, а пространственная жёсткость здания заведомо снижена из-за наличия большого количества стыковых соединений элементов и отсутствия связности между смежными плитами. Строительной системой, способной решить такие конструктивные и технологические слабости, является сборно-монолитный железобетонный каркас. Данный вид строительства становится всё более популярным в последнее время [5‒7], а потенциальные возможности сборно-монолитных конструкций достаточно широкие:
- сокращение опалубочных, арматурных и бетонных работ, выполняемых на строительной площадке;
- уменьшение количества стыковых соединений;
- высокая пространственная жёсткость здания за счёт неразрывности диска перекрытия;
- относительно лёгкий и жёсткий диск перекрытия при применении сборных частей сложной геометрической формы;
- предварительно напряжённые сборные конструкции.
Материалы и методы
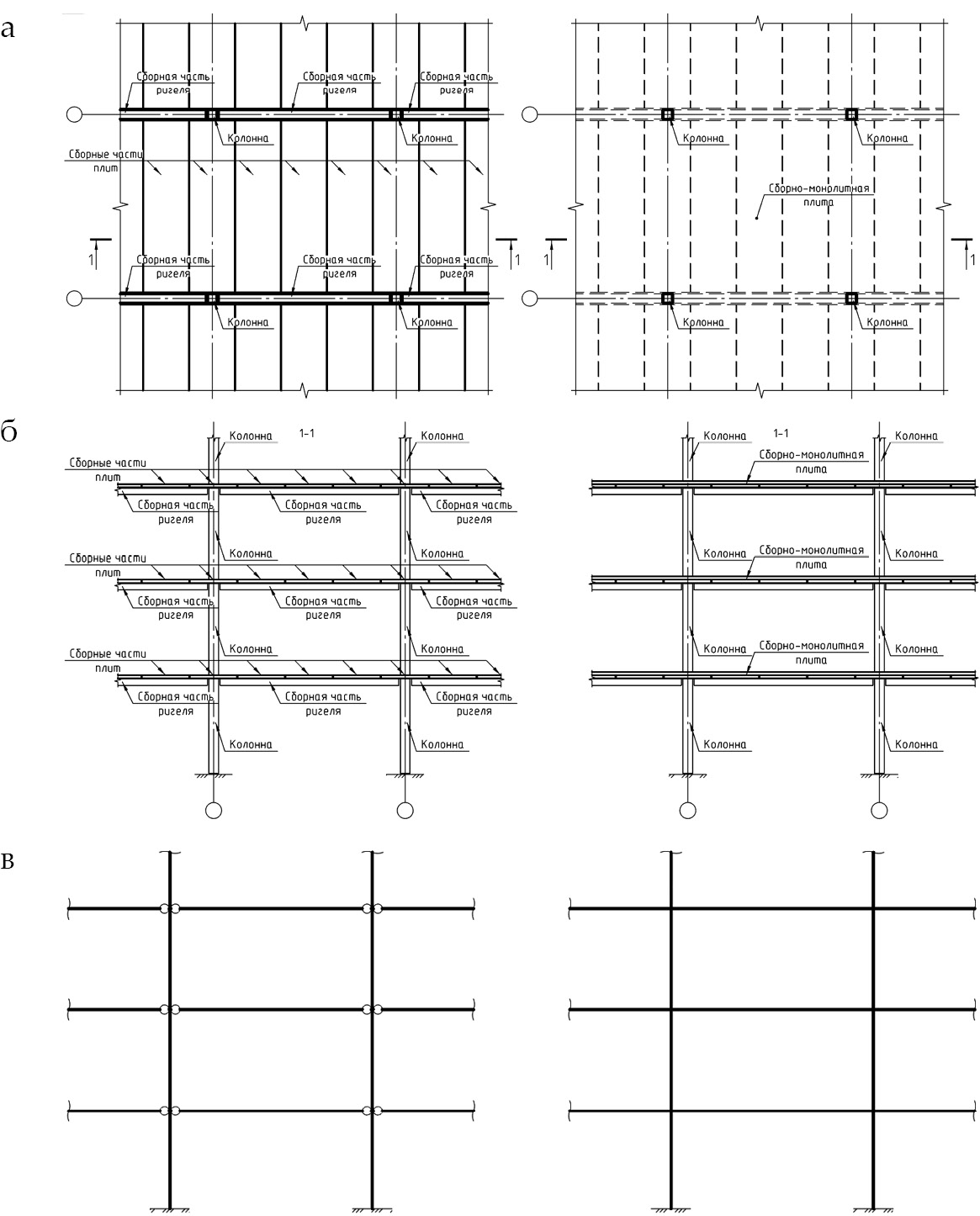
С целью повышения конструктивной и технологической эффективности применения железобетонных конструкций в холодных климатических условиях на основании обозначенного выше, а также исходя из опыта современного домостроения разработана конструктивная система сборно-монолитного каркаса, в основе которого предполагается возведение в два этапа (рис. 1).
Рис. 1. Конструктивное решение поэтапно возводимого сборно-монолитного каркаса (план, разрез, расчётная схема, слева – 1-й этап, справа – 2-й этап): a – план; б – разрез; в – расчётная схема
Fig. 1. Constructive solution of a prefabricated monolithic frame being built in stages (plan, section, design scheme, 1st stage on the left, 2nd stage on the right): a – plan; b – section; c – design scheme
На 1-м этапе происходит монтаж сборной части каркаса, которая в последующем самостоятельно воспринимает нагрузки, характерные стадии возведения (собственный вес сборных частей, вес опираемых сборных элементов, вес монолитного бетона). На 2-м этапе, в удобный временной период (с наступлением положительных температур), происходит омоноличивание всего каркаса, что приводит к его «превращению» в сборно-монолитный каркас. В итоге прочность и жёсткость каркаса увеличиваются и он способен воспринимать оставшиеся нагрузки, соответствующие стадии возведения (вес пола, перегородок, ненесущих стен, перегородок и т. д.), а также нагрузки стадии эксплуатации.
В дополнение возможны следующие конструктивные решения:
- применение лёгкого монолитного бетона, что снижает собственный вес конструкций перекрытия и общий вес здания, а также повышает тепло- и звукоизоляцию перекрытия;
- плиты-опалубки и сборные части ригелей рационального конструктивного поперечного сечения с предварительно напрягаемой арматурой обеспечивают высокую изгибную жёсткость и относительно небольшую массу диска перекрытия;
- отказ от цементно-песчаной стяжки (её функцию выполняет монолитный бетон), что позволяет снизить нагрузку и сократить расходы.
Проведены экспериментальные исследования плоских двухпролётных и двухэтажных рам Р1 и Р2, изготавливаемых и загружаемых в два этапа (рис. 2). Цель – изучение особенностей формирования напряженно-деформированного состояния в процессе монтажа и загружения сборно-монолитного каркаса. Сборные элементы выполнены из тяжёлого бетона кл. В25, а применяемый монолитный бетон – керамзитобетон кл. В15,5. На 1-м этапе происходило устройство сборной части рам – сборные колонны (70×70×1200 мм) и сборные части ригелей (70×70 х 1410 мм, в нижней зоне 3Ø3В500). На 2-м этапе, без снятия нагрузки 1-го этапа, устанавливалась верхняя продольная арматура в опорной зоне ригелей с укладкой монолитного бетона на высоту 40 мм.
Рис. 2. Экспериментальная рама: а – конструктивная схема на 1-м этапе; б – конструктивная схема на 2-м этапе; в – фото
Fig. 2. Experimental frame: a – constructive scheme at the 1st stage; b – constructive scheme at the 2nd stage; c – photo
Сопряжения элементов:
- колонн с основанием – жёсткое на 1-м и 2-м этапах;
- ригеля с колоннами – шарнирное на 1-м этапе, жёсткое на 2-м этапе.
Загружение конструкции происходило следующим образом. На 1-м этапе нагрузка моделирует монтажную нагрузку – P = 0,55 кН. На 2-м этапе нагрузка моделирует дополнительную монтажную нагрузку и эксплуатационную нагрузку – Р = 1,65 кН (нижний ярус), P = 2,2 кН и Р = 1,925 кН (верхний ярус правый и левый пролёты соответственно).
Результаты
В результате проведённых экспериментальных исследований:
- отсутствовал взаимный сдвиг монолитной и сборной частей, что указывает на возможность обеспечения совместного деформирования разновозрастных бетонов за счёт поперечной арматуры и сил трения и адгезии по поверхности сопряжения. Аналогичные результаты были получены ранее при проведении экспериментальных исследований сопряжения бетонов разного возраста и видов [7];
- после набора монолитным бетоном требуемой прочности (2-й этап) интенсивность роста прогибов и деформаций замедляется (в сравнении с 1-м этапом), что указывает на повышение жёсткости и несущей способности элементов и каркаса в целом после вовлечения в процесс деформирования монолитного бетона;
- образование первых трещин в ригелях рам происходило в рамках 1-го этапа загружения. На 1-м этапе с шагом 70‒100 мм образовывались волосяные трещины в середине пролёта сборных частей балок (рис. 3, a). Они распространялись на высоту 20‒30 мм при ширине раскрытия не более 0,05 мм;
- исчерпания несущей способности ни в одном элементе рам не произошло, что указывает на достаточную несущую способность сборно-монолитного каркаса как на этапе монтажа, так и на этапе эксплуатации;
- на 2-м этапе увеличивается прогиб непосредственно загружаемых балок, в то время как в смежном пролёте в балках происходит выгиб. Этот факт указывает на неразрывность сборно-монолитной балки за счёт армированного монолитного бетона. На это указывает и полученный характер прироста прогибов. В первоначально загружаемых балках Б2 и Б4 прогибы 4,40 и 3,89 мм, однако после загружения смежных балок прогибы уменьшились до 4,14 и 3,73 мм соответственно;
- трещины сборной части, образовавшиеся на 1-м этапе, в процессе загружения на 2-м этапе получили большее раскрытие без существенного увеличения высоты и не достигая монолитного бетона. Над средней опорой в монолитном бетоне трещины образовывались при P = 1,93 кН и более (рис. 3, б) и по окончанию 2-го этапа загружения некоторые трещины полностью пересекли монолитный бетон, не проникая в сборную часть;
- в колоннах, балках на крайних опорах, а также в горизонтальном направлении, включая контактный шов, трещин не возникло.
Рис. 3. Трещинообразование: a – 1-й этап; б – 2-й этап
Fig. 3. Cracking: a – 1st stage; b – 2nd stage
Дополнительно проведены экспериментальные исследования сборно-монолитной балки. Особенностью исследований являлось то, что монтаж и вовлечение в восприятие нагрузки сборной части и бетона омоноличивания [9] происходили этапами. Исследования показали увеличение несущей способности, трещиностойкости, а также снижение итоговых прогибов в случае этапности монтажа и загружения. Кроме того, были проведены численные исследования [10]. В ходе расчётов в программном комплексе монтаж и загружение плоской рамы этапами также привели к существенной разнице напряженно-деформированного состояния конструкций рамы при поэтапном вовлечении в процесс восприятия нагрузки сборного и монолитного бетонов.
В результате проведённых экспериментальных и численных исследований получено необходимое количество данных, позволяющих утверждать, что предлагаемое конструктивное решение сборно-монолитного каркаса с поэтапным возведением и загружением обладает достаточной прочностью и жёсткостью для восприятия нагрузок стадий поэтапного монтажа и загружения, а также эксплуатации.
Заключение
Предложенное конструктивное решение сборно-монолитного каркаса является достаточно эффективным для применения в холодных условиях строительства, так как работы по устройству монолитного бетона выполняются в короткий срок в тёплый период времени. Одновременно данная конструктивная система является достаточно жёсткой из-за жёсткости узлов сопряжения горизонтальных и вертикальных несущих элементов, а также неразрывности диска перекрытия, обладает более высокими показателями по тепло- и звукоизоляции перекрытия и покрытия, имеет меньшую массу в сравнении со зданиями из сборного и монолитного железобетона.
About the authors
Aleksandr Al. Koyankin
Siberian Federal University
Author for correspondence.
Email: KoyankinAA@mail.ru
ORCID iD: 0000-0001-5271-9904
PhD, Associate Professor, Associate Professor of the Building Structures and Controlled Systems Chair
Russian Federation, 660041, Krasnoyarsk, Svobodny av., 79References
- Kainov E.A. Analysis and evaluation of consumer properties of objects with a prefabricated monolithic frame using the method of expert assessments. Vestnik sovremennyh issledovanij [Bulletin of Modern Studies], 2019, no. 18(28), pp. 83‒88. (in Russian)
- Zoteeva E.E., Fomin N.I. New technological and constructive solutions for the construction of monolithic and prefabricated monolithic floors of civil buildings. Sovremennye tekhnologii v stroitel’stve. Teoriya i praktika [Modern technologies in construction. Theory and practice], 2018, vol. 2, pp. 336‒341. (in Russian)
- Mordich A.I., Belevich V.N., Simbirkin V.N., Navoi D.I. Experience of practical application and the main results of field tests of a prefabricated monolithic frame of Bel-NIIS. Byulleten’ stroitel’noj tekhniki [Construction machinery bulletin], 2004, no. 8, pp. 8‒12. (in Russian)
- Levikov A.V. Features of the use of ribbed prefabricated monolithic floors in modern housing construction. Vestnik Tverskogo gosudarstvennogo tekhnicheskogo universiteta. Seriya «Stroitel’stvo. Elektrotekhnika i himicheskie tekhnologii» [Bulletin of the Tver State Technical University. The series “Construction. Electrical engineering and chemical technologies”], 2022, no. 3(15), pp. 26–32. (in Russian) doi: 10.46573/2658-7459-2022-3-26-32
- Ryazanova G.N., Popova D.M. Analysis of existing methods of construction from monolithic concreteand reinforced concrete in winter cond`itions. Gradostroitel’stvo i arhitektura [Urban Construction and Architecture], 2018, vol. 8, no. 1, pp. 16‒23. (in Russian) doi: 10.17673/Vestnik.2018.01.3
- Shembakov V.A. Ossibilities of innovative industrial technology of prefabricated monolithic frame of GC “Recon-SMK”. Zhilishchnoe stroitel’stvo [Housing construction], 2023, no. 3, pp. 32–38. (in Russian) doi: 10.31659/0044-4472-2023-3-32-38
- Fyodorova N.V., Moskovceva V.S., Vetrova O.A., Grigor’eva M.I. Prefabricated monolithic reinforced concrete frame of a new generation for residential and civil buildings of increased survivability. BST: Byulleten’ stroitel’noj tekhniki [BST: Bulletin of construction equipment], 2023, no. 6(1066), pp. 24–26. (in Russian)
- Koyankin A.A., Mitasov V.M., Tskhay T.A. Compatibility of precast heavy and monolithic lightweight concretes deforming. Magazine of Civil Engineering. 2018. N. 8(84). P. 162‒172.
- Koyankin A.A., Mitasov V.M. Stress-strain state of the precast monolithic bent element. Magazine of Civil Engineering. 2020. N. 97(5).
- Koyankin A.A., Mitasov V.M. Stress-strain state of precast and cast-in place buildings. Magazine of Civil Engineering. 2017. N. 6. P. 175‒184.
Supplementary files




